Wohlfühlwohnen im Alter – Komfort, Service & Gemeinschaft unter einem Dach in Rüthen - WHG 5
Rüthen
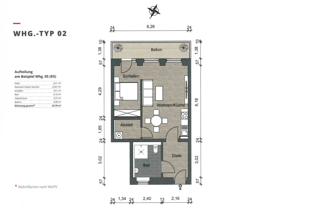
ca. 54 m²
778,65 €
Wohnungen
Wohnen
Miete
WHG 5
Wohnzimmer
Flur
Schlafzimmer
Bad
Wohnen neu definiert – im Generationenpark Rüthen
Willkommen in Ihrem neuen Zuhause im Generationenpark Rüthen im ehemaligen „Haus Maria vom Stein“, einem modernen Wohn- und Lebensquartier mit einzigartigem Konzept für alle Lebensphasen. Hier vereinen sich Komfort, Sicherheit und Lebensqualität in einem generationenübergreifenden Umfeld – ideal für selbstbestimmtes Wohnen im Alter.
Unsere erstbezugsfertigen, barrierefreien Wohnungen bieten Wohnflächen zwischen ca. 52 m² und 81 m² – perfekt zugeschnitten auf altersgerechte Ansprüche. Jede Wohnung besticht durch eine hochwertige Ausstattung mit maßgefertigter Küche, modernen Bädern und teilweise eigener Terrasse oder Balkon, die Licht und Frische ins Wohngefühl bringen.
Die Wohnanlage ist vollständig barrierefrei gestaltet und verfügt über einen modernen Personenfahrstuhl für maximalen Komfort. So bleiben Sie auch im Alltag unabhängig und mobil.
Das Quartier bietet weit mehr als nur eine Wohnung:
Restaurant & Café im Gebäude – gesellig genießen ohne Wege.
Eigenes Schwimmbad mit therapeutischen Angeboten und gesundheitsfördernden Nutzungsmöglichkeiten.
Therapeutische Anwendungen vor Ort (z. B. Ergo-, Physio- und Logopädie).
Pflegeheim & Tagespflege im direkten Verbund – sichern Sie sich Betreuung, wenn Sie sie einmal brauchen.
Dank der durchdachten Planung kombiniert der Generationenpark ein selbstständiges Wohnen mit familiärer Nähe zu Pflege und Betreuung, ohne auf Lebensqualität zu verzichten. Gemeinschaftsflächen und Begegnungszonen fördern Austausch und Nachbarschaft.
Ihr altersgerechter Wohntraum im Generationenpark Rüthen – Komfort, Sicherheit und Lebensfreude unter einem Dach.
Zur Zeit sind die Wohnungen 3, 5, 10, 11, 12, 13, 15, 16, 22, und 31 noch verfügbar.
Die genauen Grundrisse und Größen finden Sie in der Anlage anhand der Wohnungsnummer / Typ Größe.
Die Wohnungskaltmieten sind abhängig vom Wohnungstyp, und Größe und betragen zwischen 775,65 € bis 962,08 €
Lage
Lage & Umgebung – genießen Sie Natur, Geschichte und Lebensqualität
Zentral im schönen Rüthen gelegen, genießen Sie kurze Wege in die Altstadt, ans Grün der Umgebung und zu allen Versorgungsmöglichkeiten – perfekt für ein aktives Leben im Alter.
Die altersgerechten Wohnungen im Generationenpark Rüthen liegen in einer einzigartigen Lage, die Lebensfreude, Ruhe und Aktivität perfekt vereint. Die historische Berg- und Hansestadt Rüthen besticht durch ihren mittelalterlichen Charme und eine sehr hohe Wohn- und Lebensqualität.
Nur wenige Gehminuten entfernt beginnt ein barrierefreier Stadtmauerrundgang entlang der fast vollständig erhaltenen Stadtbefestigung aus dem 14. Jahrhundert – ideal für entspannte Spaziergänge, bei denen Sie immer wieder neue Ausblicke auf die Stadt und die Umgebung genießen können.
Vom Rundweg entlang der historischen Mauern eröffnet sich ein weiter Blick ins Möhnetal und die sanften Wälder des Naturparks Arnsberger Wald – ein Paradies für alle, die die Natur lieben. Die weitläufigen Waldgebiete laden zu gemütlichen Spaziergängen ein, während die hübschen Wege entlang des Tales sanftes Terrain für aktive Momente im Freien bieten.
In der Nähe finden Sie außerdem zahlreiche beeindruckende Bauwerke und Sehenswürdigkeiten:
• Das markante Hachtor – ein historisches Stadttor und Wahrzeichen, das über die Jahrhunderte hinweg Geschichten der Stadt erzählt.
• Der Hexenturm mit seiner Ausstellung zur lokalen Geschichte.
• Fachwerkhäuser wie das historische Haus Buuck aus der Hansezeit.
Aber auch kulinarisch und gesellschaftlich hat Rüthen viel zu bieten: In fußläufiger Entfernung unserer Wohnanlage laden traditionelle Cafés, gemütliche Gaststätten und Straßencafés zu geselligen Treffpunkten ein – ob für einen nachmittäglichen Kaffee mit Blick auf die Stadt oder ein geselliges Gespräch mit Nachbarn und Freunden.
Diese Lage bietet Ihnen nicht nur ein komfortables Zuhause – sie schenkt Lebensqualität.
Ausstattung
Allgemeine Wohnungsmerkmale
Erstbezug nach umfassender Sanierung des historischen „Haus Maria vom Stein“
Barrierefreie Grundrisse für altersgerechtes, selbstständiges Wohnen
Wohnflächen zwischen ca. 52 m² und 81 m² – je nach Wohnungstyp
Großzügige und durchdachte Raumaufteilung für Komfort und Bewegungsfreiheit
Küche
Maßgefertigte Küchen – hochwertige Küche nach individuellen Bedürfnissen
Raum für gemeinsames Kochen und gemütliches Leben integriert in den Wohnbereich
Badezimmer
Moderne, barrierefreie Badausstattung mit leicht zugänglichen Duschen/Badbereichen
Größere Bewegungsflächen und seniorengerechte Details für Sicherheit im Alltag
Außenbereich & Extras
Teilweise Balkon oder Terrasse mit Blick ins Grüne und in die Umgebung
Wohnräume mit großzügigen Fensterflächen und natürlichem Lichtangebot
Zusätzliche Komfort- und Gemeinschaftselemente
Zugang zu Begegnungsräumen und Gemeinschaftsflächen im Gebäude
Möglichkeit zur Nutzung des Schwimmbades und therapeutischer Bereiche im Quartier
Restaurant und Café im Gebäude als Treffpunkte für soziale Aktivitäten
Verbindung zu Pflege- und Betreuungsangeboten direkt im Quartier
Sonstiges
Wählen Sie zwischen den Wohnungstypen 2, 3, 5, 6a, 6b, und 7 (siehe Anlage)
Lift/Personenfahrstuhl im Treppenhaus für Barrierefreiheit und Mobilität
Individuell nutzbare Abstell- oder Lagerflächen innerhalb der Wohnungen
Fazit: Die Wohnungen im Generationenpark Rüthen kombinieren modernen Wohnkomfort, barrierefreie Architektur und sozialen Mehrwert durch das vielfältige Quartiersangebot – ideal für Senioren, die selbstbestimmt, sicher und gemeinschaftlich leben möchten.
Sie sehen gerade einen Platzhalterinhalt von Google Maps. Um auf den eigentlichen Inhalt zuzugreifen, klicken Sie auf die Schaltfläche unten. Bitte beachten Sie, dass dabei Daten an Drittanbieter weitergegeben werden.
Mehr Informationen











