Zwei Häuser – unendliche Möglichkeiten. Ein Traum für Macher in Rüthen
Rüthen
245.708,00 €
Doppel-Reihenhaus
Wohnen
Kauf
1965
ca. 238 m²
ca. 65 m²
ca. 857 m²
17 / 7
2 / 2
2 / 2
– / 2
Energiebedarfsausweis
Endenergiebedarf
folgt kWh/(m²*a)
folgt
folgt
folgt
Objektbeschreibung
Zwei Häuser – unendliche Möglichkeiten. Ein Traum für Macher.
In der Ritterstraße in Rüthen wartet ein besonderes Immobilienensemble auf Menschen mit Visionen: zwei aneinander gebaute Reihenhäuser, die Raum für Ideen, Kreativität und persönliches Wachstum bieten. Ob Familienprojekt, Mehrgenerationenwohnen oder Kapitalanlage – hier beginnt Zukunft.
Das Haus Nr. 50 empfängt Sie mit großzügigen ca. 133 m² Wohnfläche, viel Licht und bereits spürbarem Wohnkomfort: neue Luft-Wärmepumpe, neuwertige Böden, moderne Kunststofffenster, neue Küche und ein gemütlicher Pelletofen, der Wärme und Atmosphäre schenkt. Garten, Garage und ein ausbaufähiges Dachgeschoss eröffnen zusätzlichen Freiraum für Ihre Träume.
Das Haus Nr. 52 ist die perfekte Leinwand für Gestalter: ca. 119 m², ideal zur Schaffung von zwei Wohneinheiten, mit zwei neuwertigen Küchen, solider Gastherme und viel Potenzial für individuelle Konzepte – ob Vermietung oder getrenntes Wohnen unter einem Dach.
Ein Ort für Handwerker, Visionäre und alle, die mehr wollen als nur vier Wände.
Hier kaufen Sie nicht nur Immobilien – Sie investieren in Möglichkeiten.
Charmantes Doppel-Reihenhausensemble mit großem Potenzial – ideal für Handwerker & Visionäre
Zum Verkauf steht ein Ensemble aus zwei direkt aneinander gebauten Reihenhäusern in der Ritterstraße 50 und 52 in Rüthen. Diese Immobilie bietet vielseitige Nutzungsmöglichkeiten – vom großzügigen Mehrgenerationenwohnen bis hin zur Aufteilung in mehrere Wohneinheiten. Besonders handwerklich begabte Käufer finden hier die ideale Grundlage, um eigene Wohnträume zu verwirklichen oder ein attraktives Investitionsprojekt umzusetzen.
Lage
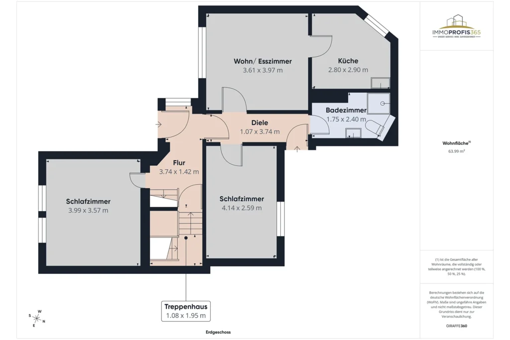
Reihenhaus Ritterstraße 50 – modernisiert & bezugsnah
Dieses Reihenhaus überzeugt durch seine großzügige Raumaufteilung und zahlreiche bereits erfolgte Erneuerungen.
- ca. 133 m² Wohnfläche
- 7 Zimmer, davon 3 Schlafzimmer
- Wohnzimmer
- Küche mit Esszimmer inkl. neuer Einbauküche
- Badezimmer
- Keller & Dachboden
- Dachgeschoss ca. 52 m² – ideal ausbaufähig
- Neue Luft-Wärmepumpe (Firma Nibe)
- Neuwertige Bodenbeläge
- Kunststofffenster
- Pelletofen im Esszimmer
- Garten mit Gartenhaus
- Garage
- Dieses Haus eignet sich ideal für Familien oder Eigennutzer, die ein solides, technisch bereits modernisiertes Zuhause suchen und dennoch Raum für individuelle Gestaltung haben.
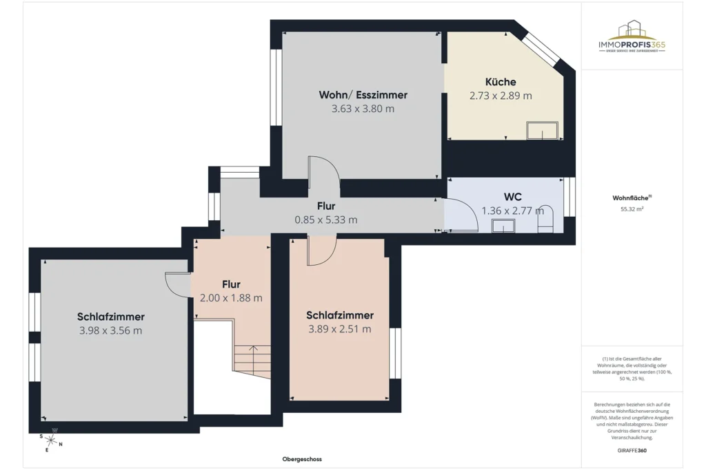
Reihenhaus Ritterstraße 52 – perfektes Ausbau- & Anlageobjekt.
Das Nachbarhaus bietet enormes Potenzial zur Schaffung von zwei separaten Wohneinheiten und ist damit besonders für Investoren oder Mehrgenerationenkonzepte interessant.
- ca. 119 m² Wohnfläche
- Grundriss ideal für 2 Wohnungen
- 4 Schlafzimmer
- Wohnzimmer
- Badezimmer
- 2 neuwertige Einbauküchen
- Neuwertige Bodenbeläge
- Gastherme Buderus (Baujahr 2004)
- Garage
- Mit überschaubarem Aufwand lässt sich hier ein attraktives Mietobjekt oder ein separates Wohnen unter einem Dach realisieren.
Fazit
Dieses Doppel-Reihenhaus bietet eine seltene Kombination aus bereits modernisierten Elementen und großem Entwicklungsspielraum. Ob Eigennutzung, Mehrgenerationenwohnen oder Kapitalanlage – hier finden Handwerker und kreative Köpfe die perfekte Basis, um ihre Ideen Wirklichkeit werden zu lassen.
Ausstattung
- Kabel Sat TV
- Kamin
- Terrasse
- Barrierearmes Badezimmer
- Balkon
- Voll unterkellert
- Zentralheizung
- Öl-Heizung
- Markise
- Massive Holz Gartenhütte
- Garage
- u. w.
Sie sehen gerade einen Platzhalterinhalt von Google Maps. Um auf den eigentlichen Inhalt zuzugreifen, klicken Sie auf die Schaltfläche unten. Bitte beachten Sie, dass dabei Daten an Drittanbieter weitergegeben werden.
Mehr Informationen






















